BINGO REGENTE

TOLEDO
2015
Fase : Estudo concluído.
Área: 98 m²
Estudo de arquitetura / Interiores
arq. Elói Fávaro
arq. Carlos Fávaro Neto
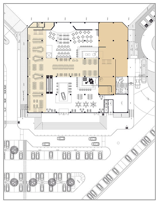
Estudo de um Bingo na cidade de Toledo. O espaço foi projetado dentro de um shopping center e contém em seu programa uma cervejaria com fabricação própria, um restaurante com cozinha aparente ao público, palco para shows, café, bar de apostas, sala de poker, salas vip e um grande espaço de máquinas de bingo.
O Estudo foi realizado quando houve uma possibilidade de re-abertura do jogo no Brasil, demonstrando um grande potencial para o segmento no País.
Casino Brazil ; Bingo Brazil, Arquitetura de bingo , arquitetura de cervejaria, projeto de cervejaria, projeto de casino, arquiteto cassino, arquiteto choperia, arquiteto restaurante, design de restaurante, projeto cozinha industrial







